高质量效率轴向叶片分离器
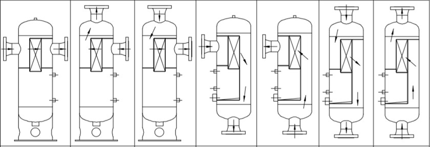
新志成高质量效率轴向叶片分离器源于简单物理学原理,通过快速的流向变化、动能碰撞、离心旋流、聚结吸附、重力来实现高质量效率的气液分离。当低密度气体和高密度液体的混合流体载入叶片分离流道,被迫的多次流向改变,低密度气体可以轻易的通过变换流道,高密度液滴由于动量作用,与叶片坚固表面发生碰撞。在每一次流向变换中,离心力被施加在气液混合物上,使液体颗粒旋流撞击湿润的叶片壁。经过多次旋流聚结,在表面张力作用下,这些液滴合并成较大的颗粒,吸收其它液滴撞击叶片,转化为片状流动,形成液膜。液滴就被从气流中分离出来,然后通过重力经叶片二级流道与气流垂直流到液体收集槽中,通过降液管排到分离器底部,达到高质量效率的气液分离。


该结构适用于液滴夹带量不大,流体不存在波动的工况。高质量效率的分离除去气液流中的液滴。
应用:液滴夹带量不超过10%
使用:立式/卧式分离器,水平流/垂直流流体的气液分离
保证:100%分离8微米及以上液滴,99%分离5-7微米的液滴;
操作弹性:40%-135%
性能优势:
1、处理能力大,有效的去除夹带液滴和雾沫;
2、100%分离8微米及以上液滴颗粒;
3、低压降;
4、寿命长,无需维护;
5、分离性能稳定,不因使用年限而产生效率下降,性能曲线是一条直线;
6、分离后的液滴与气流90°错流至叶片分离盒体底部液相收集槽,并经导液管排到容器底部,避免二次夹带,液泛;
7、设备体积小,相较传统丝网等分离器,同工况可降低40%以上设备尺寸;
设计特点/选型:
结合工况和场地要求,为客户设计不同的结构形式,满足客户特殊要求:

可配备使用液位计/液位控制/排放阀/流量指示等仪表或自控要求。
分离叶片选用304、304L、316、316L、特殊合金的要求;
定制工程、设计和制造
可选配聚结器提高分离效率
设计制造标准:GB150、 ASME、PED
可设计拆卸移动式叶片组件
